Инсталация с подово и стенно лъчисто отоплителна система в едно-фамилна сграда
Направо към навигацията
Направо към търсенето
| Продукт | InstalSystem 5 |
| Вид статия | ПРИМЕРНИ ПРОЕКТИ |
| Актуално съдържание за версия | IS 5.0 Beta 16.1 |
Project description
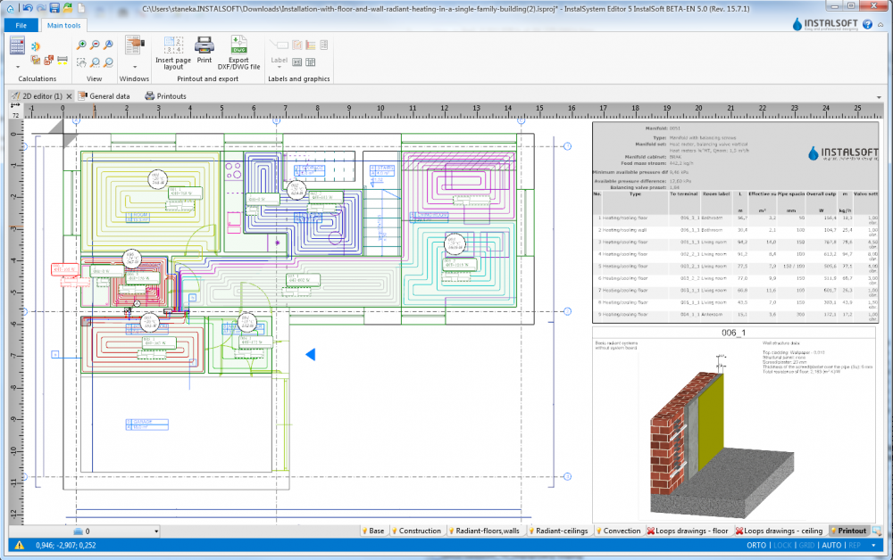
Пример илюстриращ лъчиста отоплителна инсталация със стенно и подово отоплителни системи, разположени в двуетажна сграда без сутерен.

